Земельный 1-й пер, д 1, Москва
Улица 1905 года (10 мин. пеш.)
Путь
- Общее
- Коммерческие условия
| Округ | Центральный |
| Класс | A |
| Тип здания | Офисная недвижимость |
| Общая площадь | 39217 м2 |
| Этажность | 15 |
| Кондиционирование | Центральное |
| Система пожаротушения | Спринклерная |
| Вентиляция | Приточно-вытяжная |
| Провайдер | коммерческий |
| Видеонаблюдение и Охрана | есть |
| Операционные платежи | операционные расходы включены в арендную ставку |
| Коммунальные платежи | оплачиваются дополнительно |
Аренда офисных помещений
Этаж
Метраж
Стоимостьв месяц
Цена зам2 в год
Назначение
Фотоблока
1
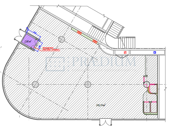
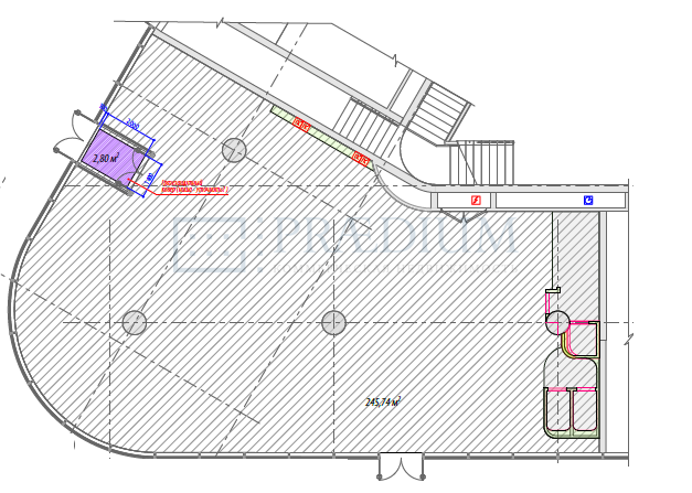
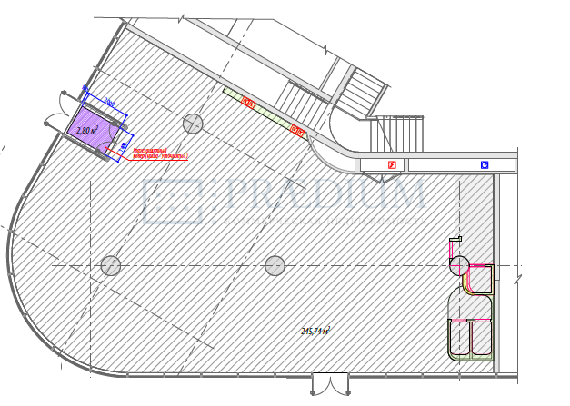
240.70
1 203 500 р.
60 000 р.
-
Характеристики
| Состояние | С отделкой |
| OPEX | Включены в ставку |
| Коммунальные платежи | По факту |
| Электричество | 60 |
| Назначение | общепит |
| Высота потолков, м | 6.2 |
Описание
Описание: По замыслу автора проекта здание планируется выполнить из монолитного железобетона с наружными ограждающими конструкциями с применением современных систем остекления и новейшими инженерными системами. Проект предполагает 4-х светный атриум, просторный ресепшн, открытую планировку этажей офисной части.
Общая площадь комплекса- 39 217 кв.м.
Общая площадь офисной части - 35 676 кв.м.
Наземная площадь офисной части - 23 596 кв.м.
Подземная автостоянка офисной части - 12 080 кв.м.
Площадь офисных этажей - от 1 227 до 2 036 кв.м.
интересует помещение?
Заполните заявку или позвоните по телефону +7 (495) 777-15-15 и консультанты ответят на ваши вопросы и назначат просмотр
Согласен на обработку персональных данных
По дополнительным вопросам и организации просмотров, пожалуйста, обращайтесь к консультанту
по объекту: +7 (495) 777 15 15
Объекты рядом
Портфолио сделок
Аренда офиса 1232,2 м2
- Клиент: АльфаЮми
- Басманная Стар. ул, д 18 стр 3, Москва
- Площадь 1602.1 м2
Аренда офиса 1500 кв.м.
- Клиент: Астон Консалтинг, ЗАО
- Шаболовка-31
- Площадь 31500 м2






