Шмитовский проезд, д 3 стр 1, Москва
Улица 1905 года (10 мин. пеш.)
Путь
- Общее
- Коммерческие условия
| Округ | Центральный |
| Класс | B+ |
| Тип здания | Офисная недвижимость |
| Общая площадь | 4626 м2 |
| Этажность | 4 |
| Провайдер | коммерческий |
| Операционные платежи | операционные расходы включены в арендную ставку |
| Коммунальные платежи | оплачиваются дополнительно |
Продажа офисных помещений
Этаж
Метраж
Стоимостьв месяц
Цена за м2
Назначение
Фотоблока
Здание целиком
4626.00
20 000 000 €
4 323 €
-
Характеристики
| Состояние | Без отделки |
| Электричество | 400 |
Описание
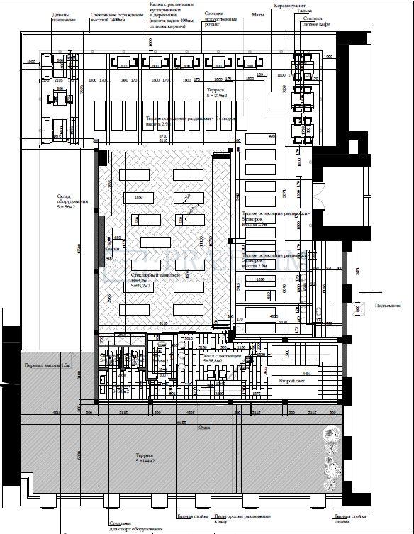
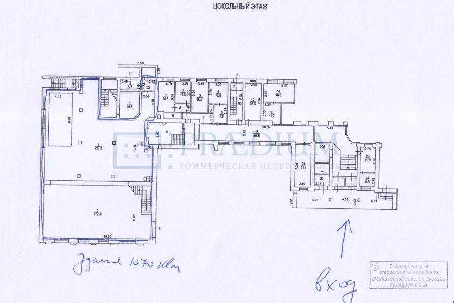
Описание: Здание состоит из двух строений.
1 стр. - 4626 кв.м. 4 этажа, цоколь, подвал. После реновации фасада, перекрытий и инженерии.
2 стр. - 1070 кв.м. Особняк с бассейном, верандой на крыше, камином. Помещения в 3-х уровнях.
В зданиях подведены все необходимые системы жизнеобеспечения.Расположение: Объект расположен в Пресненском районе Центрального округа г. Москвы. Имеется удобный подъезд с ТТК. Расстояние до МКАД -11 км., до Садового кольца - 4 км. Ближайшая ст.м. "Улица 1905 года" находится в 10 мин. ходьбы
интересует помещение?
Заполните заявку или позвоните по телефону +7 (495) 777-15-15 и консультанты ответят на ваши вопросы и назначат просмотр
Согласен на обработку персональных данных
По дополнительным вопросам и организации просмотров, пожалуйста, обращайтесь к консультанту
по объекту: +7 (495) 777 15 15
Объекты рядом
Портфолио сделок
Аренда офиса 1500 кв.м.
- Клиент: Астон Консалтинг, ЗАО
- Шаболовка-31
- Площадь 31500 м2
Аренда офиса 394,3 кв.м.
- Клиент: АО "РТ МедТех"
- Бизнес-центр "Silver-House"






