Шмитовский проезд, д 3 стр 1, Москва
Улица 1905 года (10 мин. пеш.)
Путь
Аренда офисных помещений
Наличие вакантных площадей уточняйте, пожалуйста, по телефону или оставьте заявкуПродажа офисных помещений
|
|||||
О бизнес-центре
Описание: Здание состоит из двух строений.
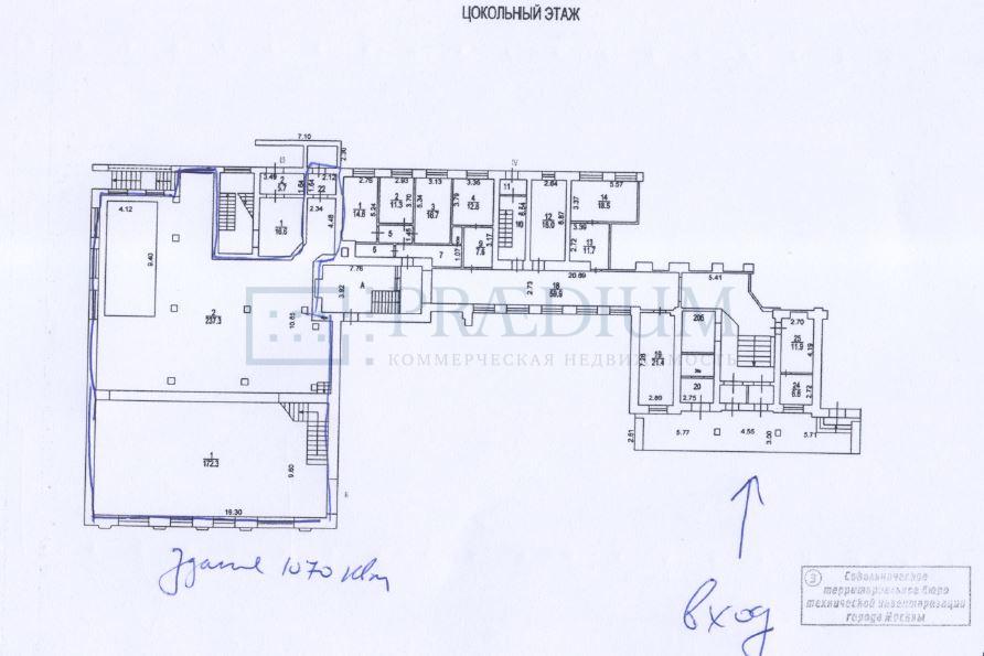
1 стр. - 4626 кв.м. 4 этажа, цоколь, подвал. После реновации фасада, перекрытий и инженерии.
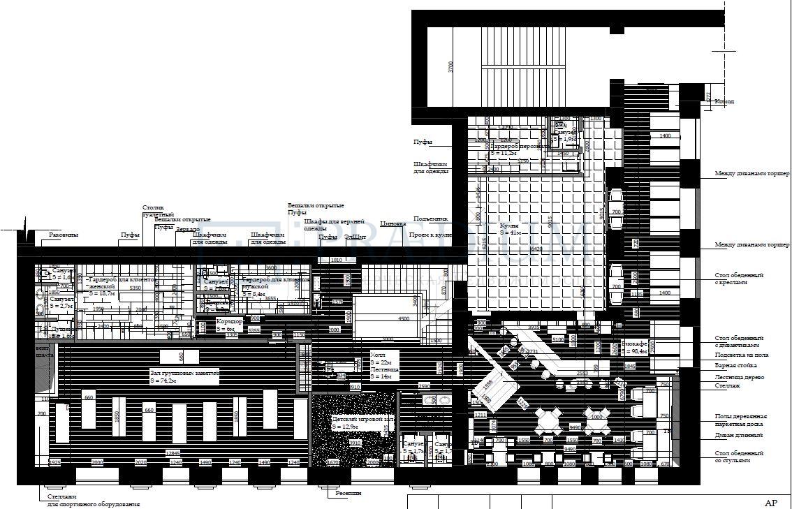
2 стр. - 1070 кв.м. Особняк с бассейном, верандой на крыше, камином. Помещения в 3-х уровнях.
В зданиях подведены все необходимые системы жизнеобеспечения.Расположение: Объект расположен в Пресненском районе Центрального округа г. Москвы. Имеется удобный подъезд с ТТК. Расстояние до МКАД -11 км., до Садового кольца - 4 км. Ближайшая ст.м. "Улица 1905 года" находится в 10 мин. ходьбы
| Округ | Центральный |
| Класс | B+ |
| Общая площадь | 4626 |
| Этажность | 4 |
| Провайдер | коммерческий |
| Эксплуатационные платежи | операционные расходы включены в арендную ставку |
| Коммунальные платежи | Коммунальные платежи оплачиваются дополнительно |
По дополнительным вопросам и организации просмотров, пожалуйста, обращайтесь к консультанту по объекту: +7 (495) 777 15 15
Объекты рядом
Портфолио сделок
Аренда офиса 980 кв.м.
- Клиент: МедиаМаркт
- Симонов Плаза
- Площадь 62500 м2
Аренда офиса 1232,2 м2
- Клиент: АльфаЮми
- Басманная Стар. ул, д 18 стр 3, Москва
- Площадь 1602.1 м2
Аренда офиса 950 кв.м.
- Клиент: ИВЦ Инсофт
- Вятка
- Площадь 9486.5 м2










































