- Общее
- Парковка
Инфраструктура - Коммерческие условия
| Округ | Западный |
| Класс | B |
| Тип здания | Офисная недвижимость |
| Общая площадь | 16000 м2 |
| Этажность | 14 |
| Система пожаротушения | Спринклерная |
| Вентиляция | Приточно-вытяжная |
| Провайдер | МГТС, Авантел, Билайн, NET:1. |
| Видеонаблюдение и Охрана | есть |
| Наземная парковка | 50 м/м, 20 000 руб, вкл НДС |
| Операционные платежи | операционные расходы включены в арендную ставку |
| Коммунальные платежи | включены в арендную ставку |
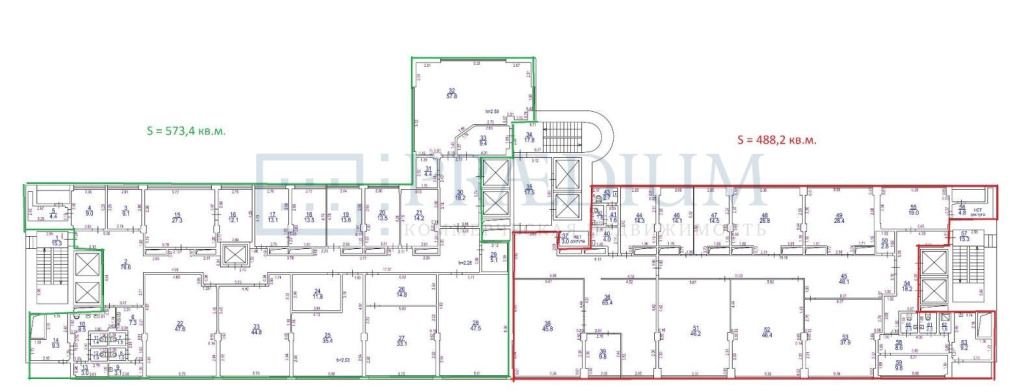
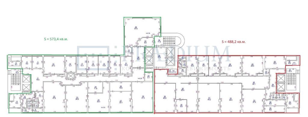
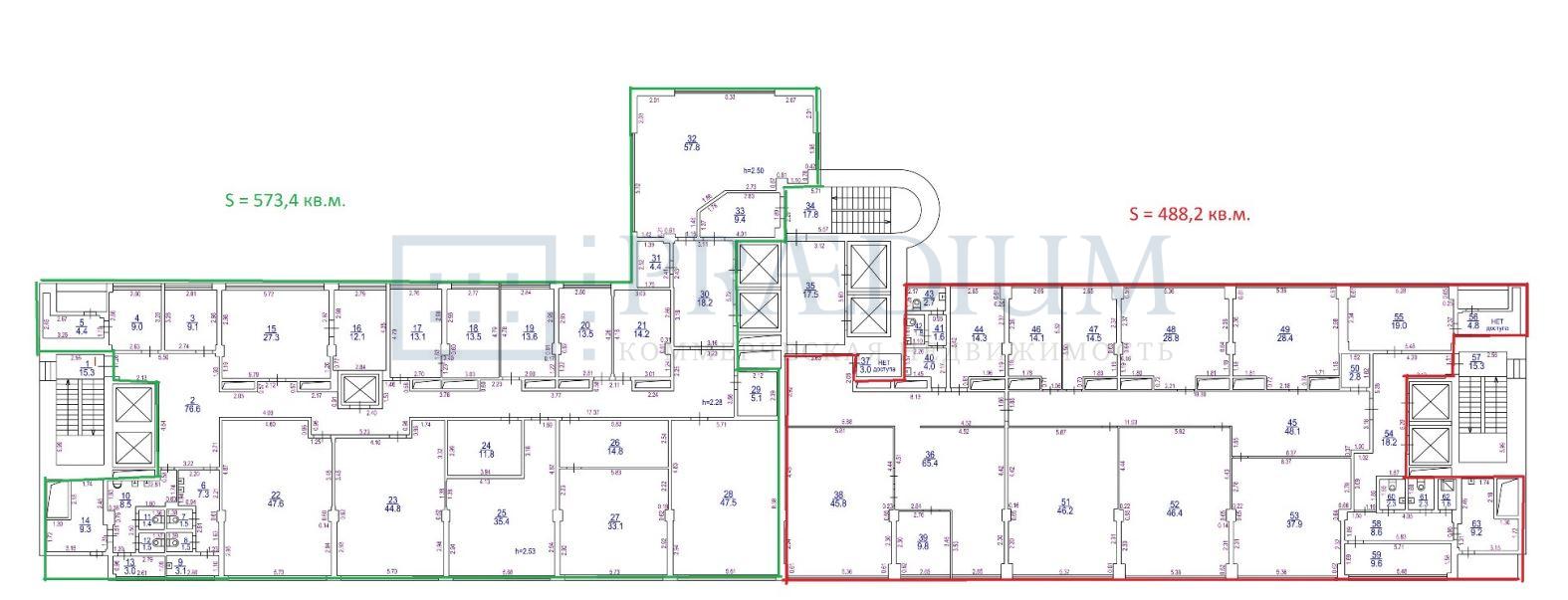
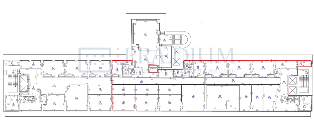
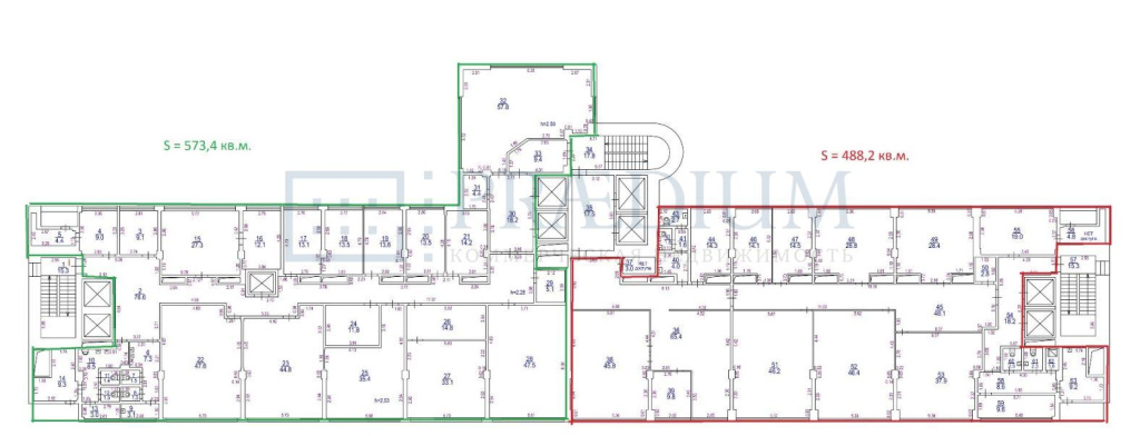
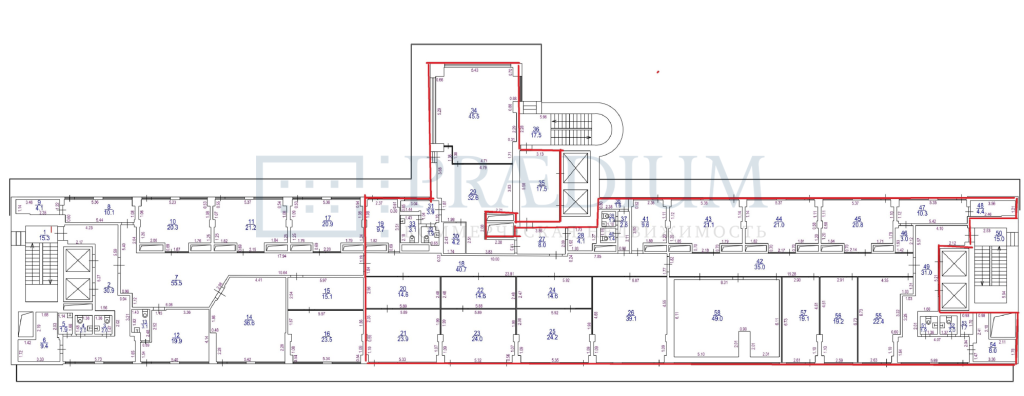
Аренда офисных помещений
Этаж
Метраж
Стоимостьв месяц
Цена зам2 в год
Фотоблока
Характеристики
| Состояние | С отделкой |
| OPEX | Включены в ставку |
Характеристики
| Состояние | С отделкой |
| OPEX | Включены в ставку |
Характеристики
| Состояние | С отделкой |
| OPEX | Включены в ставку |
Характеристики
| Состояние | С отделкой |
| OPEX | Включены в ставку |
Описание
Описание: В результате проведённого капитального ремонта,- высококачественная отделка входных групп, лестниц, лифтовых холлов и зон общего пользования, и переоснащения с использованием новейших технологических достижений и природных отделочных материалов, здание модернизировано для размещения офисов класса "В". Время работы БЦ 24/7Расположение: Объект расположен в престижном, одном из самых экологически чистых районов города, в зоне респектабельной застройки, на пересечении Университетского пр-та и Мосфильмовской ул. Ближайшее ст. м. "Парк Победы", "Воробьёвы горы" 10-15 мин. на транспорте.
Шатл бесплатно от метро Киевская, время отправления: 08:00; 09:00; 10:00. Вечером до метро Киевская: 17:00; 18:00; 19:00.
интересует помещение?
Заполните заявку или позвоните по телефону +7 (495) 777-15-15 и консультанты ответят на ваши вопросы и назначат просмотр
Портфолио сделок
- Клиент: Фирма Вирту
- Бизнес - центр "Port Plaza"
- Площадь 12820 м2
- Клиент: НИРИТ-СИНВЭЙ Телеком Технолоджи
- Лотос, башня С
- Площадь 29450 м2














