Комсомольский пр-кт, д 27 стр 5, Москва
Фрунзенская (3 мин. пеш.)
Путь
- Общее
- Коммерческие условия
| Класс | B |
| Тип здания | Офисная недвижимость |
| Этажность | 8 |
| Кондиционирование | Центральное |
| Система пожаротушения | Спринклерная |
| Вентиляция | Приточно-вытяжная |
| Провайдер | коммерческий |
| Операционные платежи | операционные расходы включены в арендную ставку |
| Коммунальные платежи | оплачиваются дополнительно |
Аренда офисных помещений
Этаж
Метраж
Стоимостьв месяц
Цена зам2 в год
Назначение
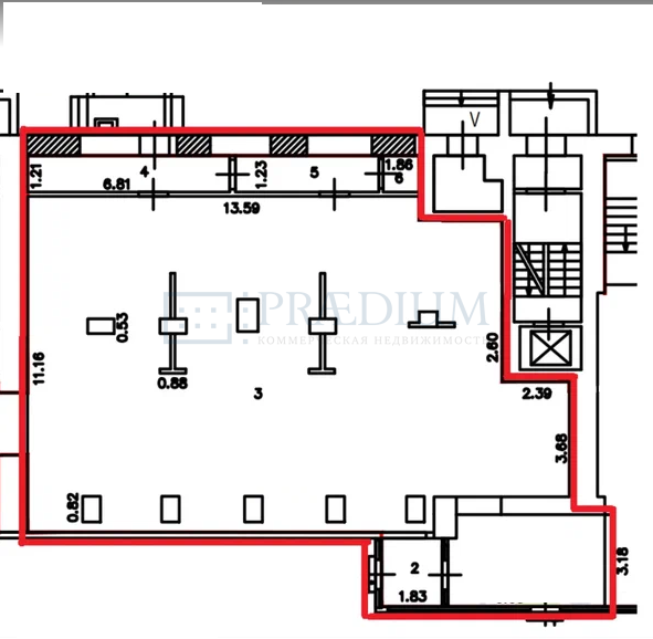
Фотоблока
1
222.00
1 700 000 р.
91 892 р.
-
Характеристики
| Состояние | С отделкой |
| OPEX | Включены в ставку |
| Коммунальные платежи | По факту |
| Назначение | магазин |
Описание
Описание: Восьмиэтажный кирпичный жилой комплекс с коммерческими помещениями на 1 - ом этаже. Год постройки: 1961. Находится на первой линии домов. Насыщенный автомобильный и пешеходный трафик. Широкие рекламные возможности фасада. В соответствии с требованиями, предъявляемыми к инженерному обеспечению, здание оснащено всем необходимым.
интересует помещение?
Заполните заявку или позвоните по телефону +7 (495) 777-15-15 и консультанты ответят на ваши вопросы и назначат просмотр
Согласен на обработку персональных данных
По дополнительным вопросам и организации просмотров, пожалуйста, обращайтесь к консультанту
по объекту: +7 (495) 777 15 15
Объекты рядом
Портфолио сделок
Продажа офиса 1437 кв.м.
- Клиент: НИРИТ-СИНВЭЙ Телеком Технолоджи
- Лотос, башня С
- Площадь 29450 м2
Аренда офиса 4589 кв.м.
- Клиент: Wildberries
- Слободской
- Площадь 12659.5 м2
Аренда офиса 1282 кв.м.
- Клиент: БОВА Евразия
- Очаковская Б. ул, д 35А, Москва
- Площадь 1450.8 м2






