- Общее
- Парковка
Инфраструктура - Коммерческие условия
| Округ | Центральный |
| Класс | A |
| Тип здания | Офисная недвижимость |
| Общая площадь | 16895 м2 |
| Этажность | 8 |
| Кондиционирование | Центральное |
| Система пожаротушения | Спринклерная |
| Вентиляция | Приточно-вытяжная |
| Провайдер | Комбеллга |
| Видеонаблюдение и Охрана | есть |
| Подземная парковка | 250 м/м, легковые обычного класса 15 000руб., люкс 35 000руб. не вкл. НДС |
| Парковочный коэффициент | 1/100 |
| Операционные платежи | операционные расходы включены в арендную ставку |
| Коммунальные платежи | оплачиваются дополнительно |
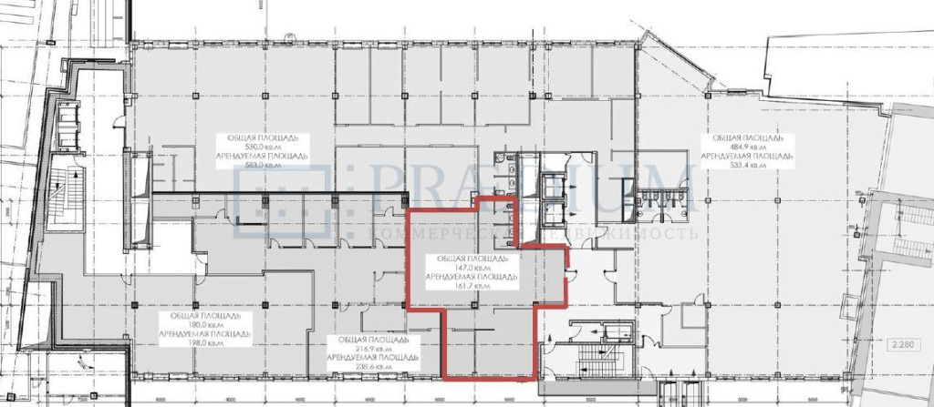
Аренда офисных помещений
Этаж
Метраж
Стоимостьв месяц
Цена зам2 в год
Фотоблока
Характеристики
| Состояние | С отделкой |
| OPEX | Включены в ставку |
| Коммунальные платежи | По факту |
Характеристики
| Состояние | С отделкой |
| OPEX | Включены в ставку |
| Коммунальные платежи | По факту |
Характеристики
| Состояние | С отделкой |
| OPEX | Включены в ставку |
| Коммунальные платежи | По факту |
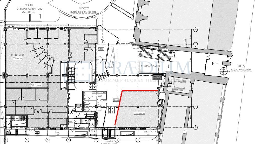
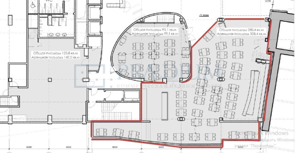
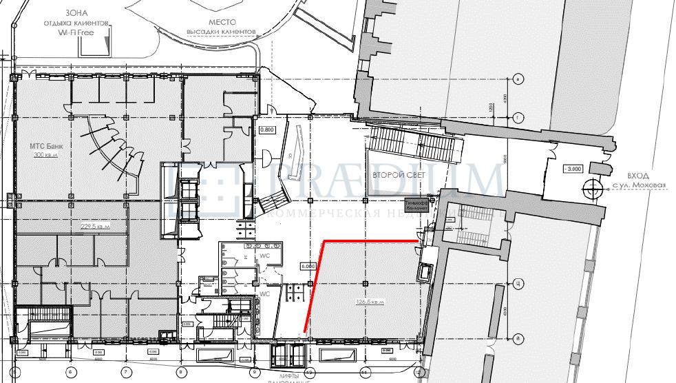
| Назначение | общепит |
Описание
Описание: Новое 8-этажное офисное здание, отвечающее всем требованиям предъявляемым к бизнес-центрам класса "А". Эффективная открытая планировка этажей. Передовые информационные технологии, новейшее инженерное оборудование и системы безопасности отвечают стандартам офисов класса «А».Расположение: Деловой центр расположен в самом центре столицы - в 200 м. от Кремля, в окружении таких известных объектов как Дом Пашкова, музей изобразительных искусств им. А.С. Пушкина, Храм Христа Спасителя, Библиотека им. Ленина. В 3 минутах ходьбы находиться станции метро "Библиотека им. Ленина" и "Александровский Сад", в 5 минутах - станция метро "Боровицкая". Прекрасный доступ на все центральные магистрали города: Бульварное кольцо, Садовое кольцо, Новый Арбат и Тверскую улицу
интересует помещение?
Заполните заявку или позвоните по телефону +7 (495) 777-15-15 и консультанты ответят на ваши вопросы и назначат просмотр
Объекты рядом
Портфолио сделок
- Клиент: ЦОКР
- Марксистская ул, д 14/16 стр 1, Москва
- Площадь 1735.9 м2
- Клиент: Магнит
- РТС Варшавский
- Площадь 18840 м2
- Клиент: Оптовая турецкая компания по продаже текстильной продукции
- Котляковская ул.






















