- Общее
- Коммерческие условия
| Округ | Центральный |
| Класс | A |
| Тип здания | Офисная недвижимость |
| Общая площадь | 23920 м2 |
| Этажность | 5 |
| Кондиционирование | Центральное |
| Система пожаротушения | Спринклерная |
| Вентиляция | Приточно-вытяжная |
| Провайдер | Билайн, Westcall |
| Видеонаблюдение и Охрана | есть |
| Операционные платежи | операционные расходы включены в арендную ставку |
| Коммунальные платежи | оплачиваются дополнительно |
Аренда офисных помещений
Этаж
Метраж
Стоимостьв месяц
Цена зам2 в год
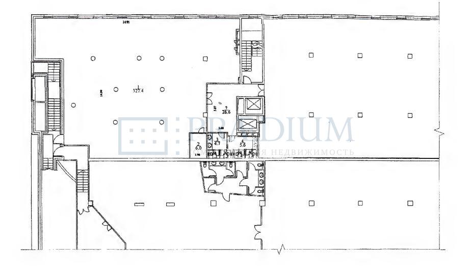
Фотоблока
Характеристики
| Состояние | С отделкой |
| OPEX | Включены в ставку |
| Коммунальные платежи | По факту |
Характеристики
| Состояние | С отделкой |
| OPEX | Включены в ставку |
| Коммунальные платежи | По факту |
Продажа офисных помещений
Этаж
Метраж
Стоимостьв месяц
Цена за м2
Назначение
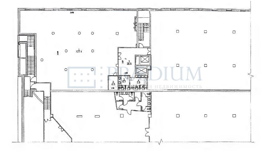
Фотоблока
Характеристики
| Состояние | С отделкой |
| Отдельный вход |
Описание
Описание: Современный деловой комплекс состоит из пяти зданий переменной этажности - 5-7 этажей, соединенных между собой стилобатной частью на 1 и 2 уровнях, где размещается торговая галерея. Офисные блоки расположены в одном из зданий с 1 по 4 этажи. В стилобатной части расположены отдельные входы в офисную (2700 кв.м.) , жилую (6277 кв.м.) и торговую (5700 кв.м.) части. Конструктивные особенности: высота потолков от перекрытия до перекрытия в офисной части 3,3 м., свободная планировка этажей.Расположение: Бизнес-центр расположен в самом сердце Москвы на Пречистенской набережной. Данный район, находящийся в непосредственной близости от Кремля (1,5 км.) и Храма Христа Спасителя, является наиболее престижным в столице и часто именуется "Золотая миля". Станция метро "Кропоткинская" находиться в 5 минутах ходьбы.
интересует помещение?
Заполните заявку или позвоните по телефону +7 (495) 777-15-15 и консультанты ответят на ваши вопросы и назначат просмотр
Объекты рядом
Портфолио сделок
- Клиент: АльфаЮми
- Басманная Стар. ул, д 18 стр 3, Москва
- Площадь 1602.1 м2
- Клиент: НИРИТ-СИНВЭЙ Телеком Технолоджи
- Лотос, башня С
- Площадь 29450 м2
- Клиент: World Class
- Ямъ Плаза
- Площадь 5446.9 м2












