Елоховский Пассаж

Торгово-офисный центр "Елоховский Пассаж" - Офисная недвижимость
Торгово-офисный центр "Елоховский Пассаж" - Офисная недвижимость
Спартаковская ул, д 24, Москва
Бауманская (3 мин. пеш.) Красносельская (3 мин. пеш.) Путь
  • Общее
  • Парковка
    Инфраструктура
  • Коммерческие условия
Округ Центральный
Класс B
Тип здания Офисная недвижимость
Общая площадь 14178 м2
Этажность 5
Кондиционирование Центральное
Система пожаротушения Спринклерная
Вентиляция Приточно-вытяжная
Провайдер коммерческий
Видеонаблюдение и Охрана есть
Наземная парковка 2 м/м вкл. в ставку аренды
Подземная парковка 99 м/м, 8 000 руб., не вкл. НДС
Операционные платежи операционные расходы включены в арендную ставку
Коммунальные платежи оплачиваются дополнительно

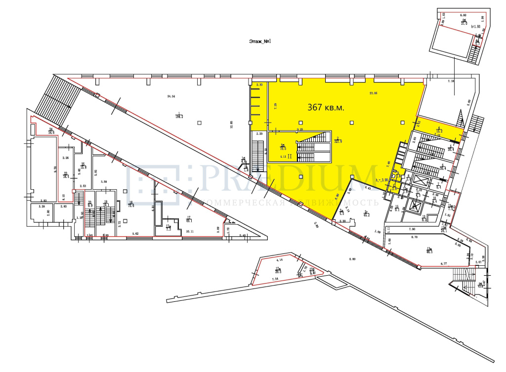
Аренда офисных помещений

Этаж
Метраж
Стоимость
в месяц
Цена за
м2 в год
Назначение
Фото
блока
1
370.00
2 500 000 р.
81 081 р.
-

Характеристики

Состояние С отделкой
OPEX Включены в ставку
Коммунальные платежи По факту
Назначение магазин
3
750.00
1 500 000 р.
24 000 р.
-

Характеристики

Состояние С отделкой
OPEX Включены в ставку
Коммунальные платежи По факту
Назначение магазин

Описание

Описание: Бизнес-центр "Елоховский Пассаж" располагается в одноимённом торговом комплексе. Одна часть здания занята торговыми помещениями, а вторая используется для аренды офисов. Всего в деловом комплексе 5 этажей, а также 2 подземных уровня. ВнешнеБЦ "Елоховский Пассаж" смотрится спокойно и деловито. Несколько входных групп обеспечивают свободный доступ как в торговую, так и в офисную части комплекса. Для безопасности арендаторов установлена система контроля доступа и камеры видеонаблюдения. Качественная внутренняя отделка, несколько пассажирских лифтов, большие оконные проёмы — в офисном центре всё продумано до мелочей. Смешанная планировка офисов и высокие потолки позволяют распределить рабочую площадь максимально эффективно.Расположение: Бизнес-центр "Елоховский Пассаж" расположен в живописном р-не "Басманный" ЦАО Москвы. Басманный р-он Москвы является одним из престижных исторических р-нов Москвы. Напротив "Елоховского Пассажа" находится один из крупнейших храмов города Богоявленский Кафедральный Собор. Из окон бизнес-центра открываются прекрасные виды на Елоховский собор. БЦ "Елоховский Пассаж" расположен в непосредственной близости от крупных транспортных развязок –ТТК и Садовое кольцо, а также Ярославского, Казанского и Ленинградского вокзалов, что делает его исключительно удобным.

интересует помещение?

Заполните заявку или позвоните по телефону +7 (495) 777-15-15 и консультанты ответят на ваши вопросы и назначат просмотр

Согласен на обработку персональных данных
По дополнительным вопросам и организации просмотров, пожалуйста, обращайтесь к консультанту по объекту: +7 (495) 777 15 15

Объекты рядом

Бауманская ул, д 44 стр 1, Москва Бауманская ул, д 44 стр 1, Москва

м.Бауманская

от 30 м2

Бауманская ул, д 53 стр 1, Москва Бауманская ул, д 53 стр 1, Москва

м.Бауманская

от 3 м2

Лобачика ул, д 11, Москва Лобачика ул, д 11, Москва

м.Красносельская

Портфолио сделок

Продажа офиса 1437 кв.м.
Продажа офиса 1437 кв.м.
  • Клиент: НИРИТ-СИНВЭЙ Телеком Технолоджи
  • Лотос, башня С
  • Площадь 29450 м2
Нармин Давудова

Заместитель директора

Аренда офиса 251 кв.м
Марина Моргунова

Консультант

Продажа 9000 кв.м.
Продажа 9000 кв.м.
  • Клиент: Оптовая турецкая компания по продаже текстильной продукции
  • Котляковская ул.
Нармин Давудова

Заместитель директора