Гиляровского ул, д 39 стр 3, Москва

Гиляровского ул, д 39 стр 3, Москва
Путь
  • Общее
  • Парковка
  • Коммерческие условия
Класс B
Общая площадь 7529.6 м2
Этажность 13
Провайдер коммерческий
Наземная парковка 12 м/м, 21 000 руб. вкл. НДС
Операционные платежи операционные расходы включены в арендную ставку
Коммунальные платежи включены в арендную ставку

Продажа офисных помещений

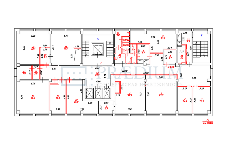
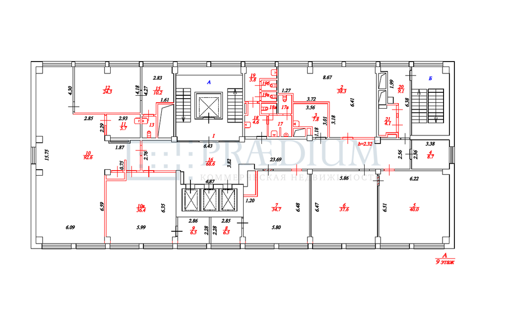
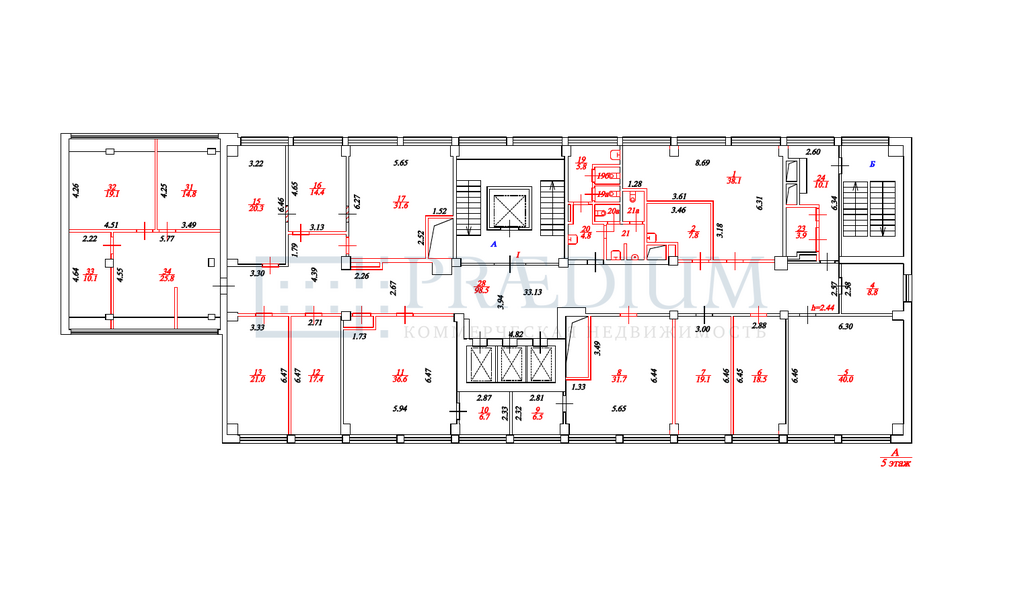
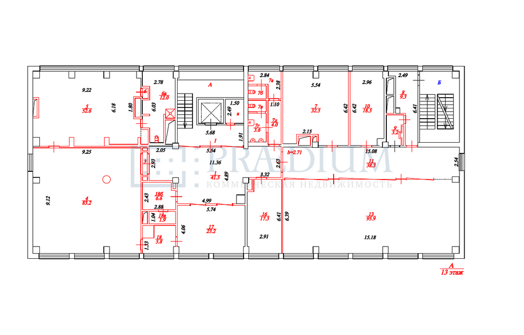
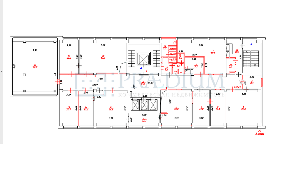
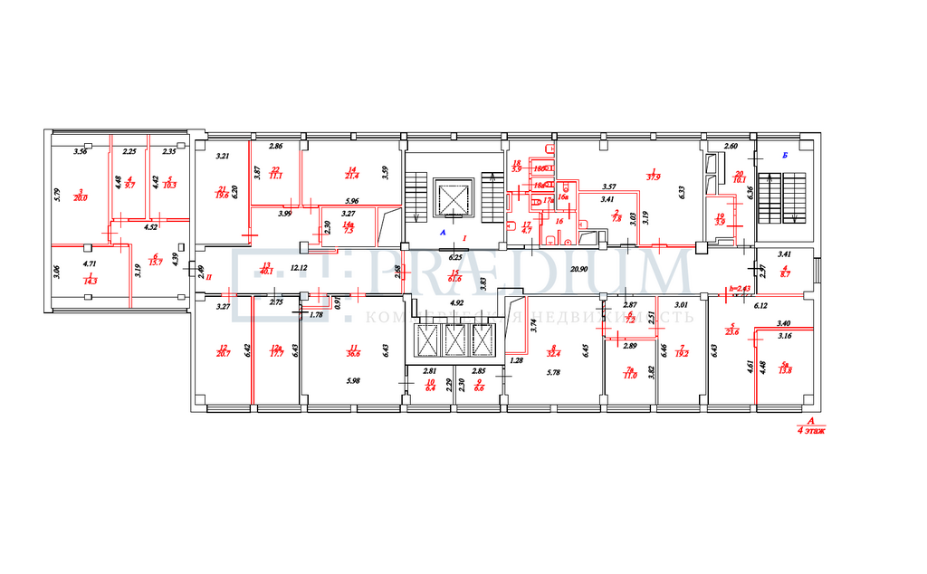
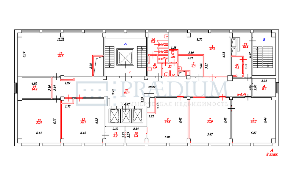
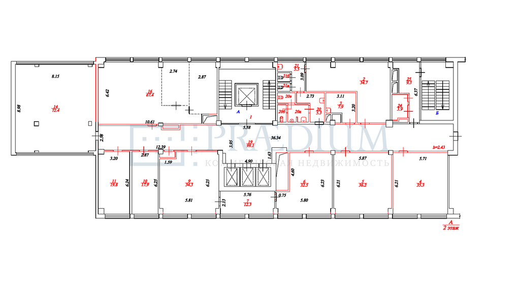
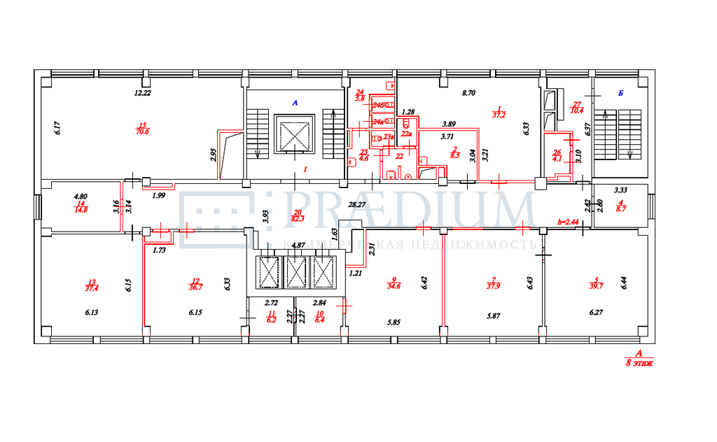
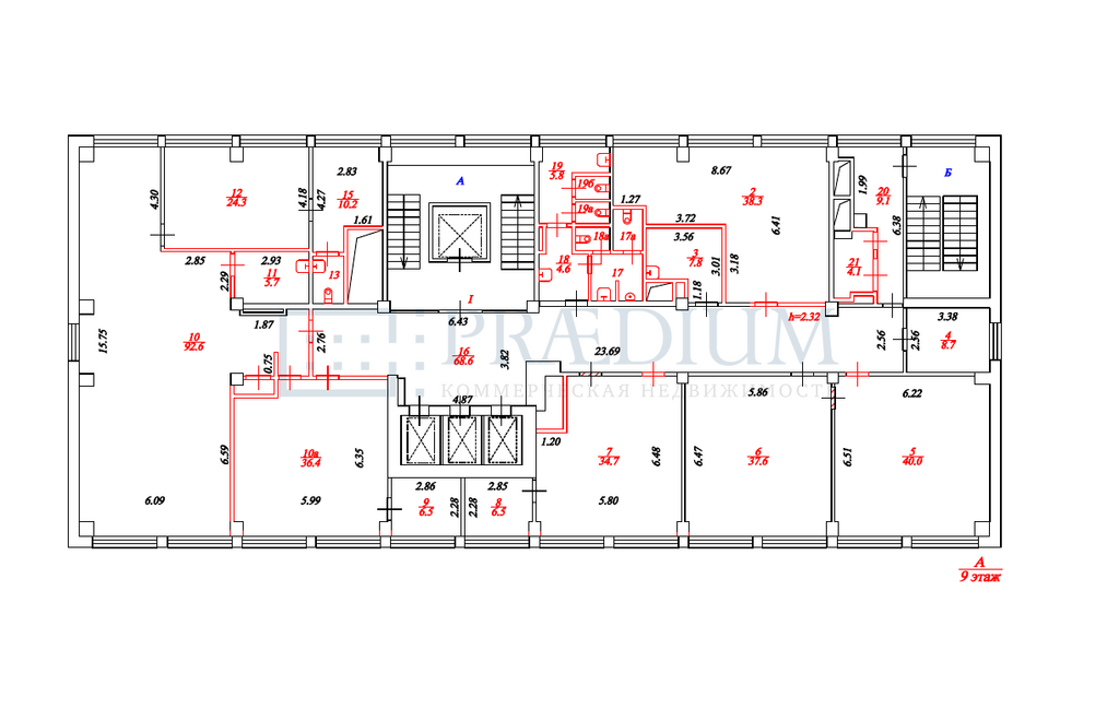
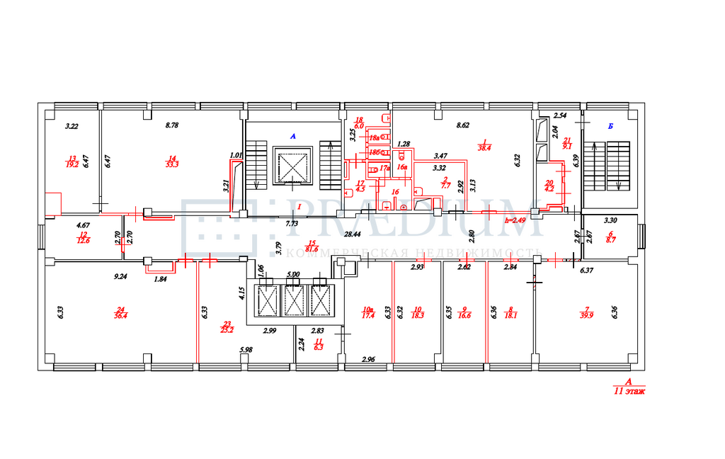
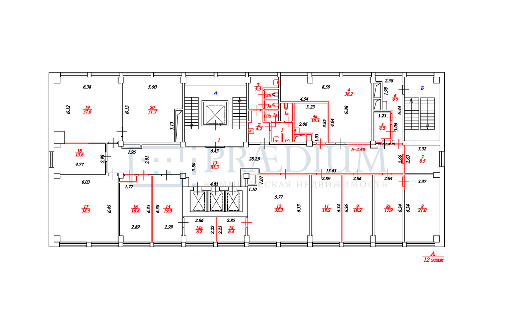
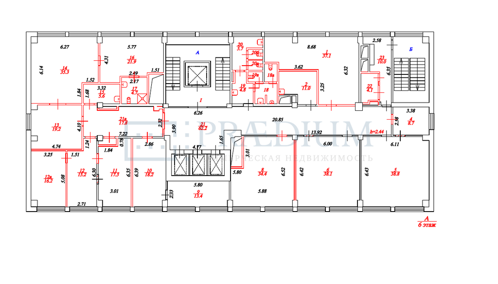
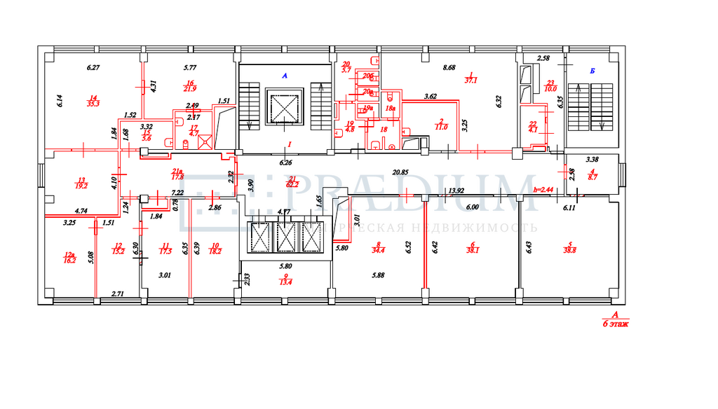
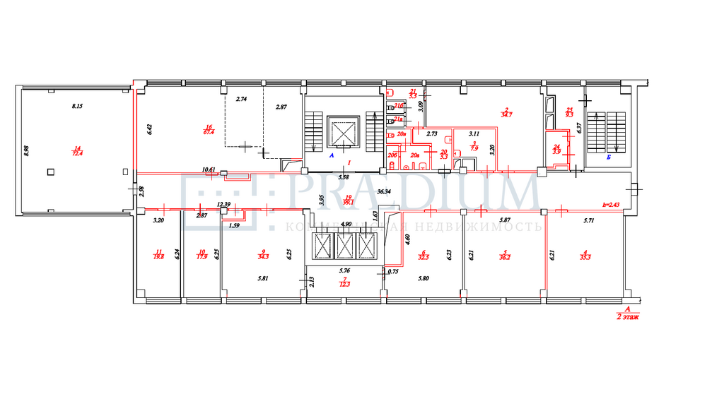
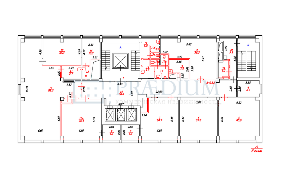
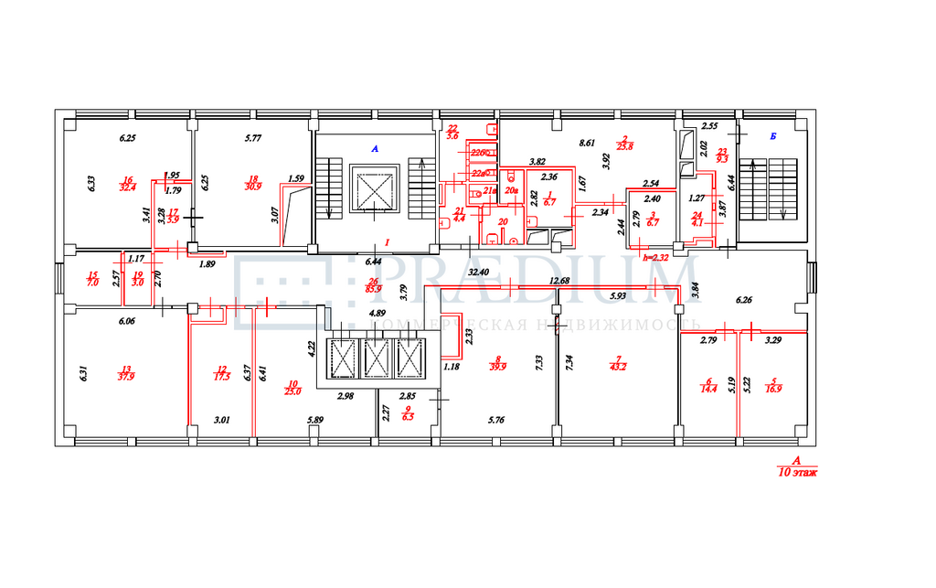
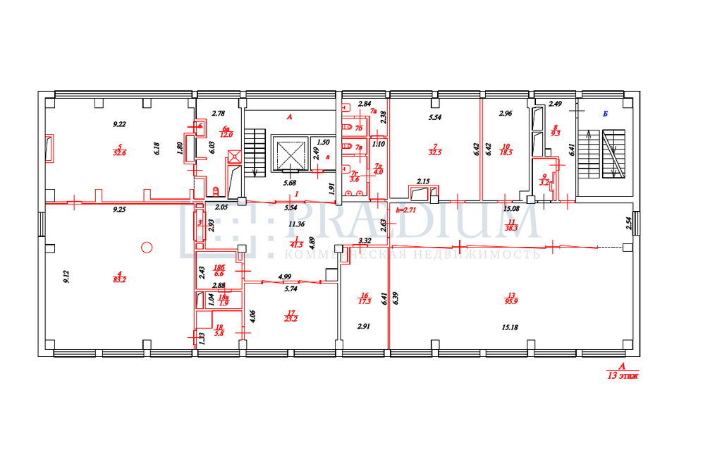
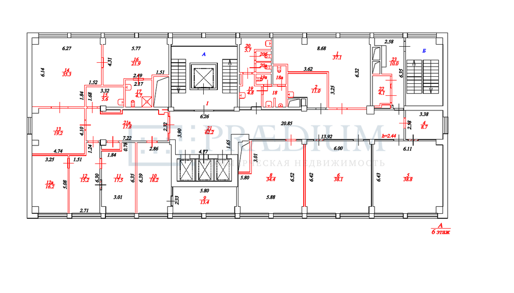
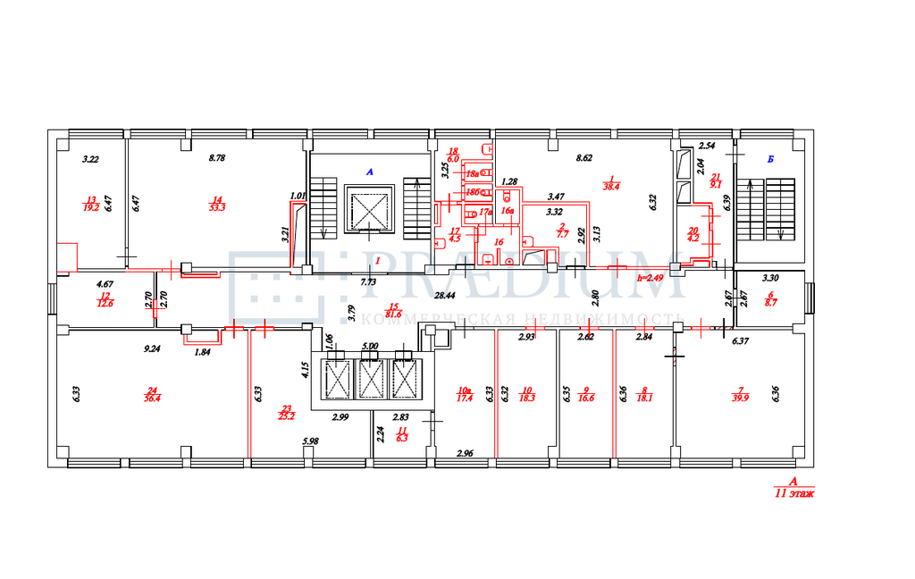
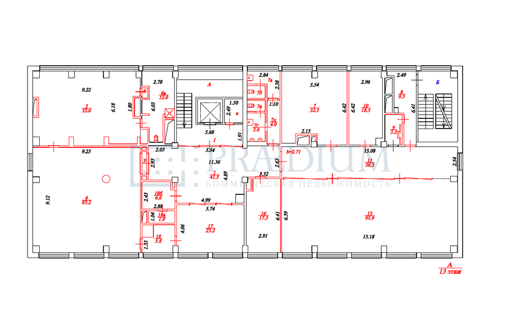
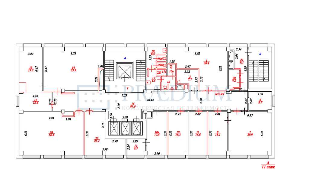
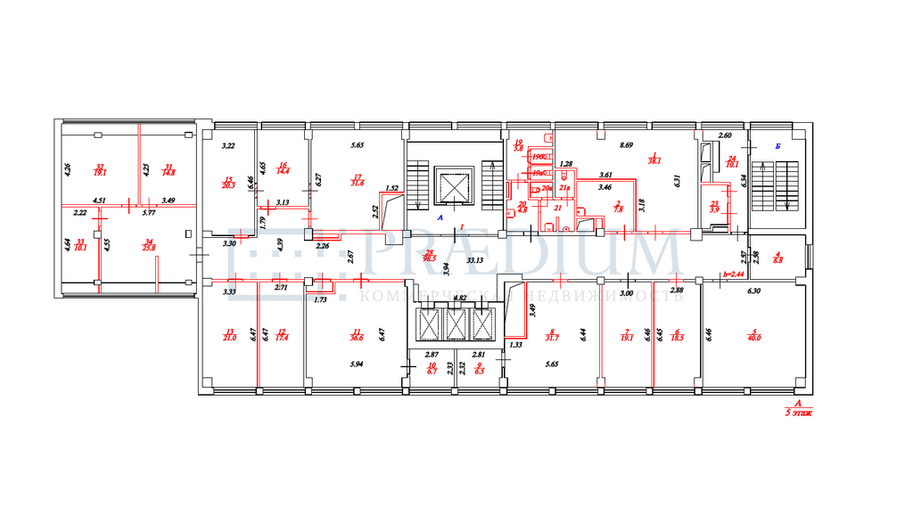
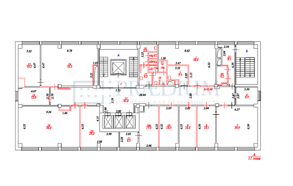
Этаж
Метраж
Стоимость
за блок
Стоимость
за м2
Состояние
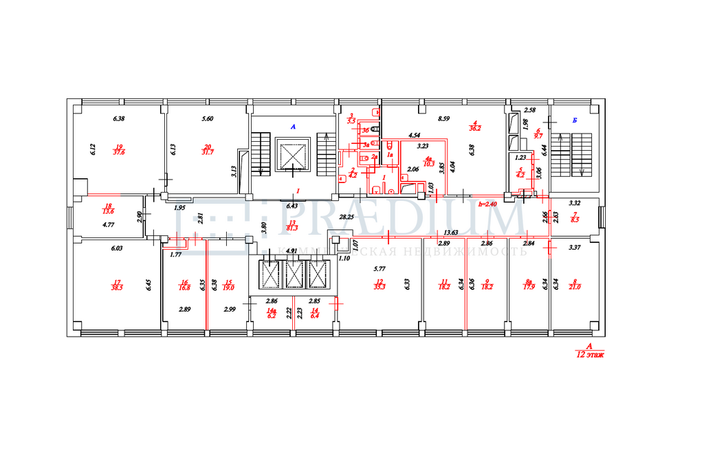
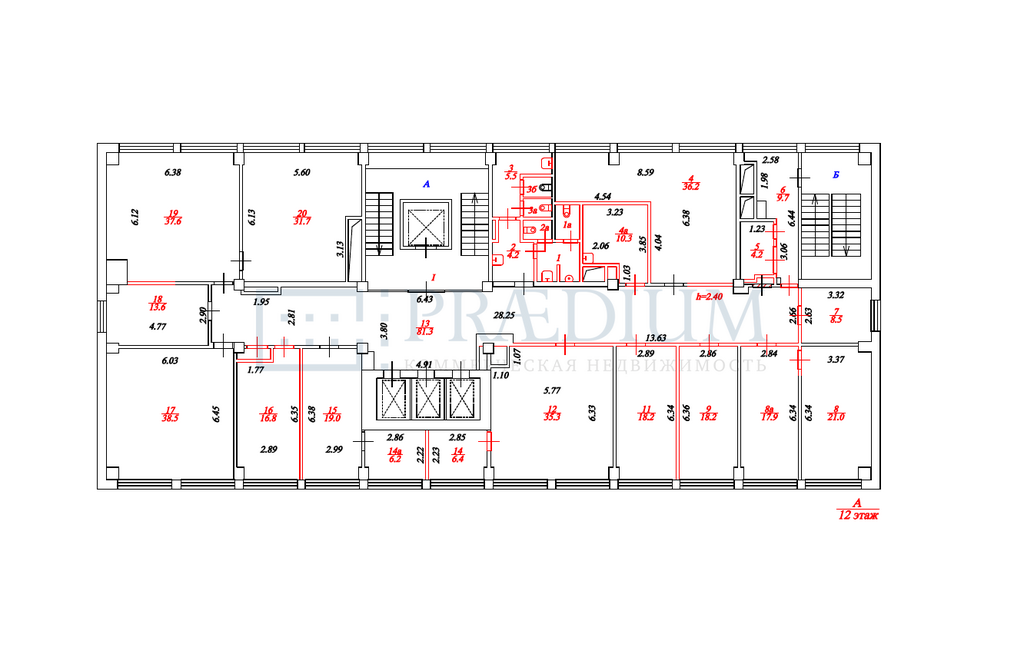
Фото
блока
1
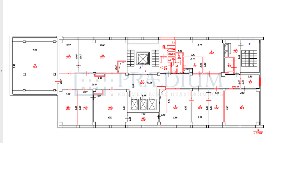
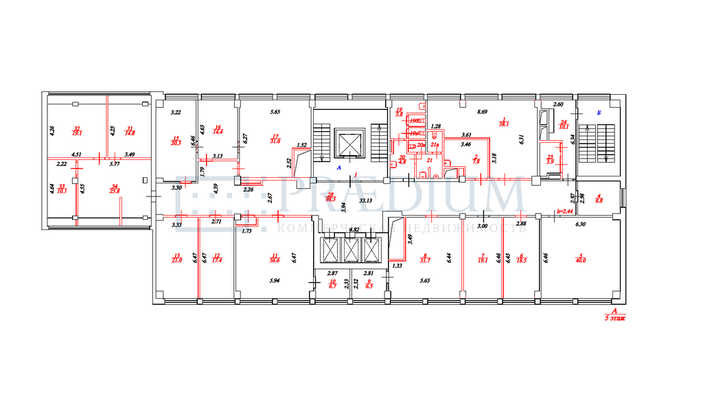
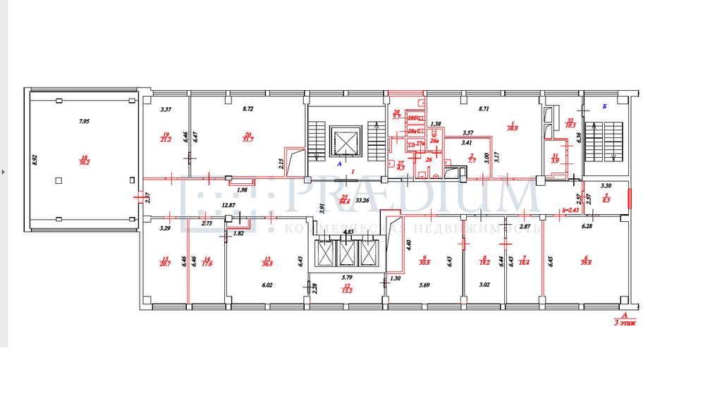
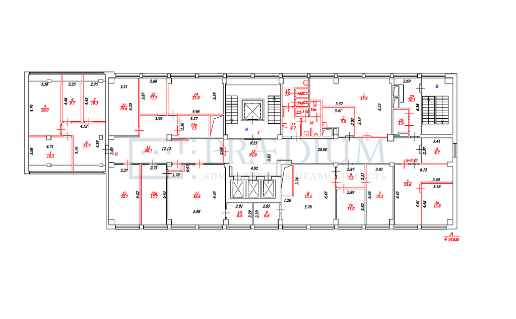
7529.60
2 100 000 000 р.
278 899 р.
С отделкой

Описание

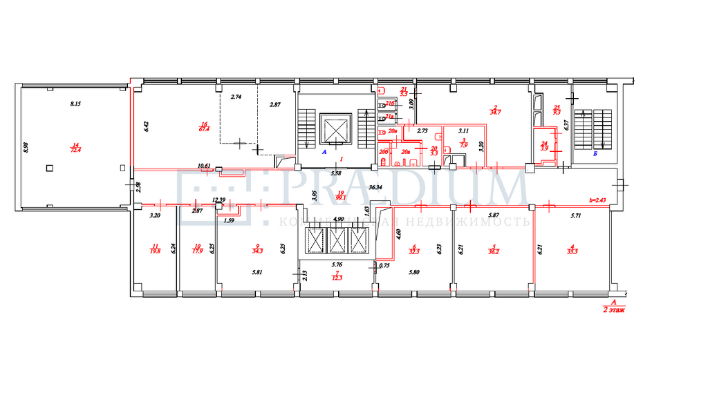
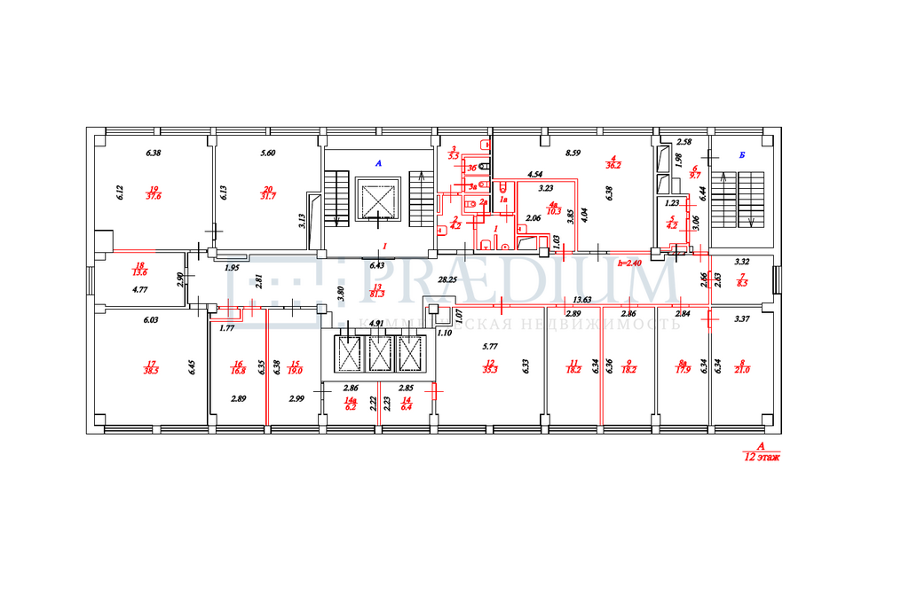
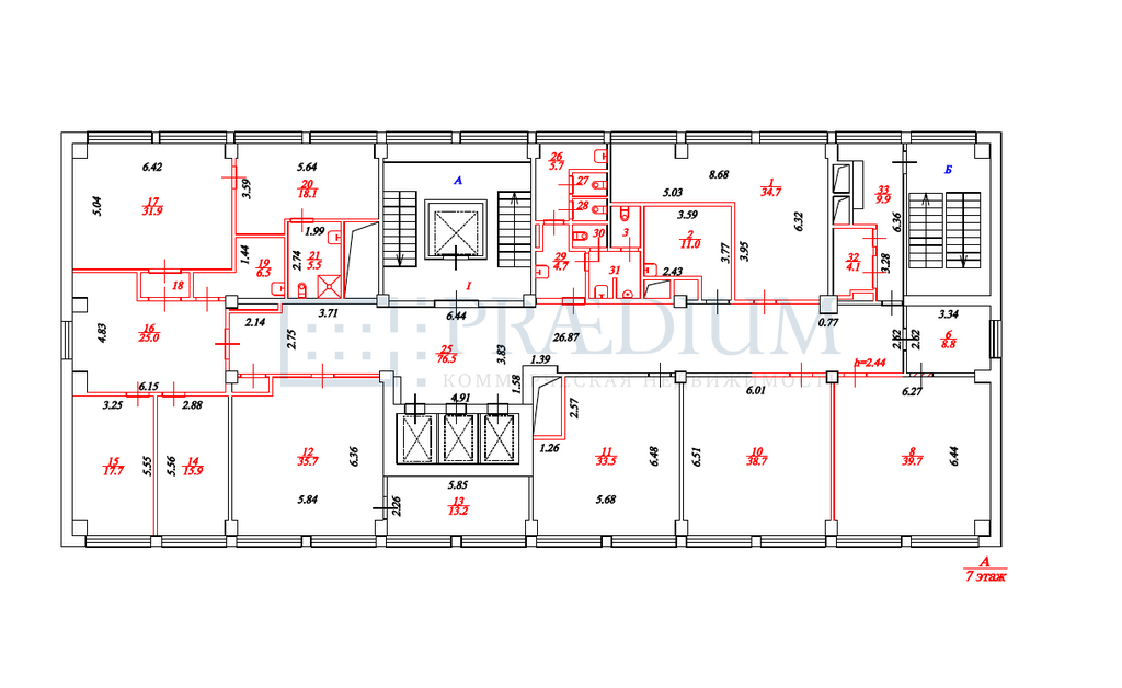
Описание: Построенное в 1973 году здание характеризуется высоким уровнем технического обслуживания и соответствует требованиям безопасности. Здание по степени комфорта, эргономичности и инженерным коммуникациям в полной мере соответствует требованиям, предъявляемым к бизнес-центрам В класса. Общая площадь арендных помещений бизнес-центра, включая зоны общего пользования и офисы, составляет 9700 кв.м. 13-этажный офисный комплекс "Гиляровского 39 с3" – образец офисного центра оптимальной высоты, когда на верхние этажи можно подняться даже по лестнице. Приток свежего воздуха в объект обеспечивают приточно-вытяжная вентиляция и система центрального кондиционирования.Расположение: Расположение бизнес-центра "Гиляровского 39 с3" в 4 минутах от метро "Проспект мира" особенно удобно для тех, кто предпочитает передвигаться по городу на общественном транспорте. Удобная транспортная доступность офисного центра обуславливается наличием выездов к таким крупным автомобильным артериям, как Проспект Мира, Третье Транспортное Кольцо.

интересует помещение в Гиляровского ул, д 39 стр 3, Москва?

Заполните заявку или позвоните по телефону +7 (495) 777-15-15 и консультанты ответят на ваши вопросы и назначат просмотр

По дополнительным вопросам и организации просмотров, пожалуйста, обращайтесь к консультанту по объекту: +7 (495) 777 15 15

Портфолио сделок

Аренда офиса 1373,2 кв.м.
Роман Щербак

Директор департамента

Аренда офиса 6924 кв.м
Аренда офиса 6924 кв.м
Роман Щербак

Директор департамента

Аренда офиса 950 кв.м.
Аренда офиса 950 кв.м.
  • Клиент: ИВЦ Инсофт
  • Вятка
  • Площадь 9486.5 м2
Нармин Давудова

Заместитель директора