Гастелло ул, д 30, Москва
Путь
- Общее
- Коммерческие условия
| Класс | A |
| Тип здания | Офисная недвижимость |
| Общая площадь | 1365 м2 |
| Этажность | 2 |
| Кондиционирование | Центральное |
| Система пожаротушения | Спринклерная |
| Вентиляция | Приточно-вытяжная |
| Провайдер | коммерческий |
| Видеонаблюдение и Охрана | есть |
| Операционные платежи |
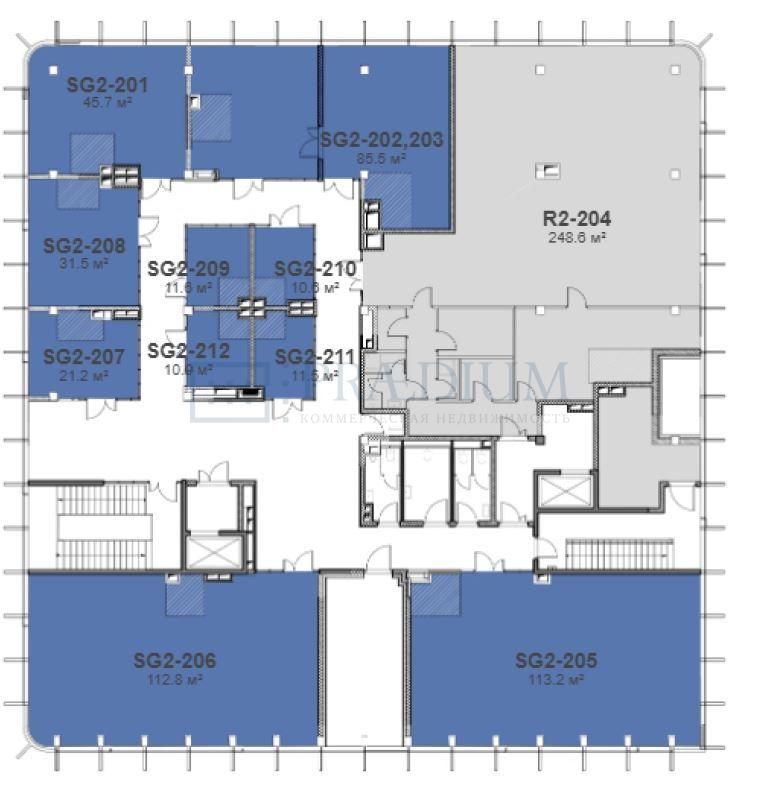
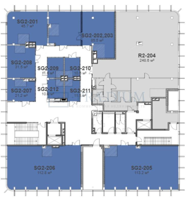
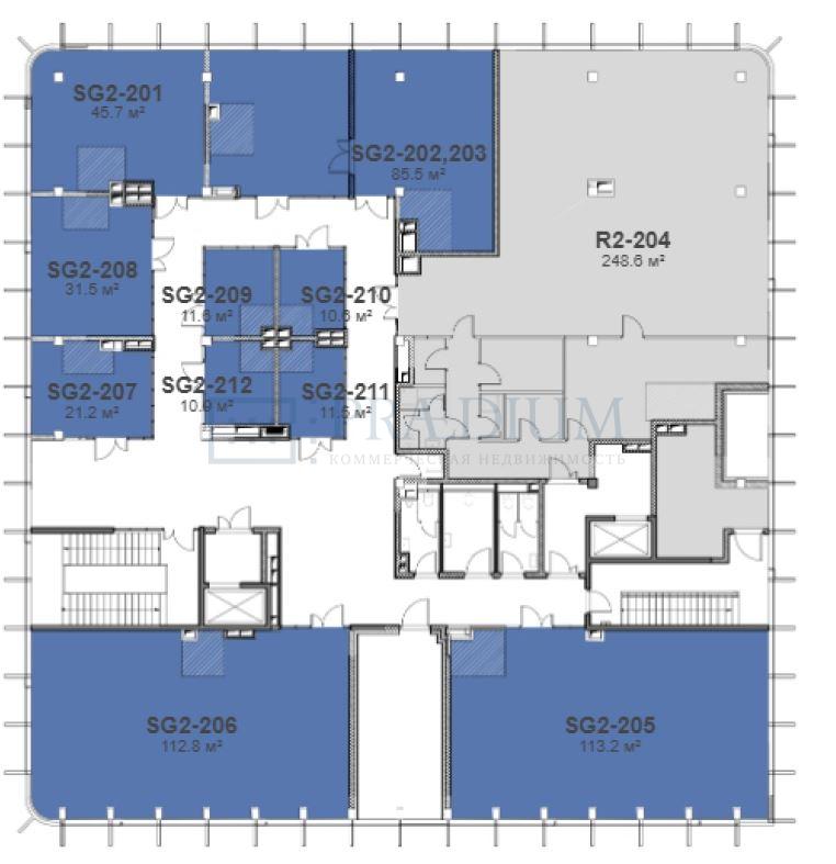
Продажа офисных помещений
Этаж
Метраж
Стоимостьв месяц
Цена за м2
Назначение
Фотоблока
1
71.00
52 043 000 р.
733 000 р.
-
Характеристики
| Состояние | Без отделки |
| Назначение | магазин |
1
132.20
102 851 600 р.
778 000 р.
-
Характеристики
| Состояние | Без отделки |
| Назначение | магазин |
2
113.20
54 109 600 р.
478 000 р.
-
Характеристики
| Состояние | Без отделки |
| Назначение | магазин |
2
85.50
43 947 000 р.
514 000 р.
-
Характеристики
| Состояние | Без отделки |
| Назначение | магазин |
Описание
Описание: Торговый центр в 2 этажа имеет хорошую просматриваемость с перекрестка, а напротив – через дорогу - располагается скейт-парк со спортивной и детской площадкой, который является центром притяжения для жителей района.
интересует помещение?
Заполните заявку или позвоните по телефону +7 (495) 777-15-15 и консультанты ответят на ваши вопросы и назначат просмотр
Согласен на обработку персональных данных
По дополнительным вопросам и организации просмотров, пожалуйста, обращайтесь к консультанту
по объекту: +7 (495) 777 15 15
Объекты рядом
Портфолио сделок
Аренда офиса 251 кв.м
- Клиент: Фирма Вирту
- Бизнес - центр "Port Plaza"
- Площадь 12820 м2
Аренда офиса 1682 кв.м.
- Клиент: Новый киноколледж
- Красный октябрь
- Площадь 35000 м2
Аренда офиса 1282 кв.м.
- Клиент: БОВА Евразия
- Очаковская Б. ул, д 35А, Москва
- Площадь 1450.8 м2










