Озерковская наб, д 4, Москва
Новокузнецкая (5 мин. пеш.)
Путь
- Общее
- Коммерческие условия
| Класс | B |
| Тип здания | Офисная недвижимость |
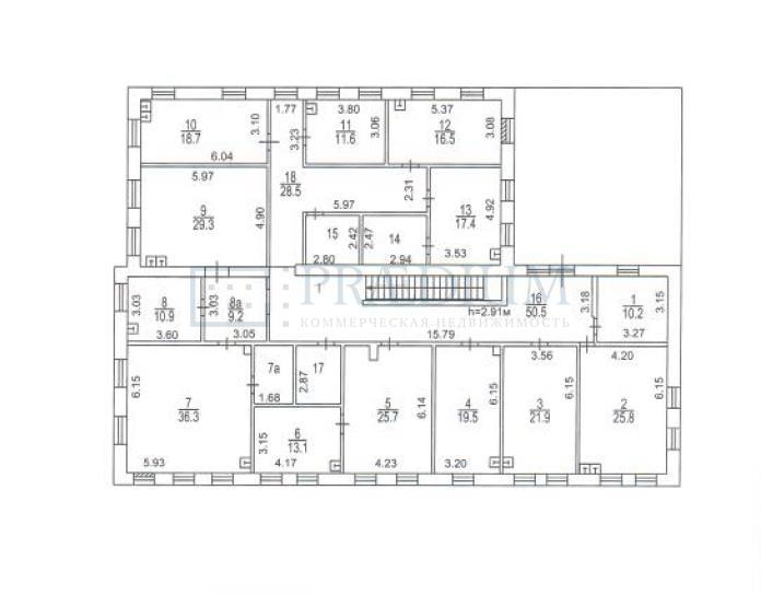
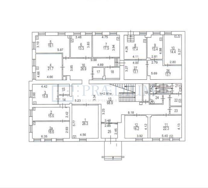
| Общая площадь | 769.3 м2 |
| Этажность | 2 |
| Вентиляция | Приточно-вытяжная |
| Провайдер | МГТС |
| Операционные платежи | операционные расходы включены в арендную ставку |
| Коммунальные платежи | оплачиваются дополнительно |
Аренда офисных помещений
Этаж
Метраж
Стоимостьв месяц
Цена зам2 в год
Назначение
Фотоблока
Здание целиком
769.30
3 000 000 р.
46 796 р.
-
Характеристики
| Состояние | С отделкой |
| OPEX | Включены в ставку |
| Коммунальные платежи | По факту |
| Назначение | клиника |
| Высота потолков, м | 2.9 |
Описание
Описание: Здание общей площадью 769,3 кв.м. В соответствии с требованиями, предъявляемыми к инженерному обеспечению объектов офисного назначения, здание оснащено всем необходимым.
интересует помещение?
Заполните заявку или позвоните по телефону +7 (495) 777-15-15 и консультанты ответят на ваши вопросы и назначат просмотр
Согласен на обработку персональных данных
По дополнительным вопросам и организации просмотров, пожалуйста, обращайтесь к консультанту
по объекту: +7 (495) 777 15 15
Объекты рядом
Портфолио сделок
Аренда офиса 1682 кв.м.
- Клиент: Новый киноколледж
- Красный октябрь
- Площадь 35000 м2
Аренда офиса 4589 кв.м.
- Клиент: Wildberries
- Слободской
- Площадь 12659.5 м2
Аренда офиса 394,3 кв.м.
- Клиент: АО "РТ МедТех"
- Бизнес-центр "Silver-House"










