Чуксин туп, д 9, Москва
Дмитровская (5 мин. тр.)
Путь
- Общее
- Парковка
Инфраструктура - Коммерческие условия
| Округ | Северный |
| Класс | B |
| Тип здания | Офисная недвижимость |
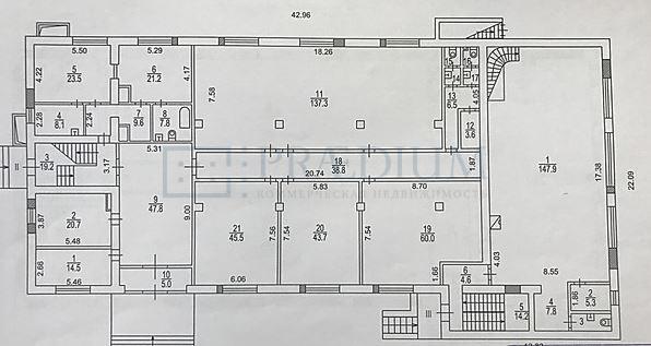
| Общая площадь | 2900.9 м2 |
| Этажность | 3 |
| Вентиляция | Приточно-вытяжная |
| Провайдер | МТС |
| Видеонаблюдение и Охрана | есть |
| Парковочный коэффициент | 1/100 |
| Операционные платежи | операционные расходы включены в арендную ставку |
| Коммунальные платежи | включены в арендную ставку |
Продажа офисных помещений
Этаж
Метраж
Стоимостьв месяц
Цена за м2
Назначение
Фотоблока
1
2900.90
750 000 000 р.
258 540 р.
-
Характеристики
| Состояние | С отделкой |
| Назначение | клиника,фитнесс,гостиница |
Описание
Описание: 3-х этажный современный бизнес-центр, расположенный на собственной огороженной территории. В соответствии с требованиями, предъявляемыми к инженерному обеспечению объектов офисного назначения, здание оснащено всем необходимым: евроотделка, цифровые телефонные линии, высокоскоростной интернет, приточно-вытяжная вентиляция, пропускной режим, охрана.
интересует помещение?
Заполните заявку или позвоните по телефону +7 (495) 777-15-15 и консультанты ответят на ваши вопросы и назначат просмотр
Согласен на обработку персональных данных
По дополнительным вопросам и организации просмотров, пожалуйста, обращайтесь к консультанту
по объекту: +7 (495) 777 15 15
Объекты рядом
Портфолио сделок
Аренда офиса 1232,2 м2
- Клиент: АльфаЮми
- Басманная Стар. ул, д 18 стр 3, Москва
- Площадь 1602.1 м2
Аренда офиса 872 кв.м.
- Клиент: Глосав
- Воробьёвский
- Площадь 16000 м2
Аренда офиса 1373,2 кв.м.
- Клиент: ЦОКР
- Марксистская ул, д 14/16 стр 1, Москва
- Площадь 1735.9 м2






