Тестовская ул, д 10, Москва
Международная (5 мин. пеш.)
Путь
- Общее
- Парковка
Инфраструктура - Коммерческие условия
| Округ | Центральный |
| Класс | A |
| Тип здания | Офисная недвижимость |
| Общая площадь | 135000 м2 |
| Этажность | 26 |
| Кондиционирование | Центральное |
| Система пожаротушения | Спринклерная |
| Вентиляция | Приточно-вытяжная |
| Провайдер | Мосинфоком |
| Видеонаблюдение и Охрана | есть |
| Наземная парковка | 50 000р. с НДС |
| Подземная парковка | 714 м/м, 50 000р. с НДС |
| Парковочный коэффициент | 1/80 |
| Операционные платежи | 10000р., операционные расходы оплачиваются дополнительно |
| Коммунальные платежи | оплачиваются дополнительно |
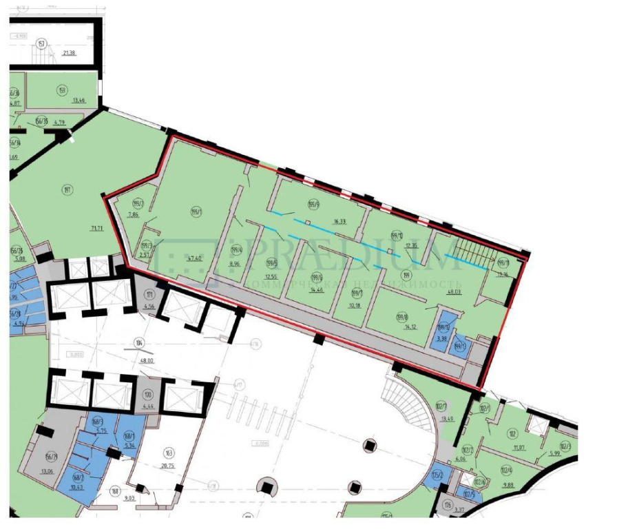
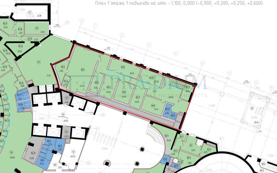
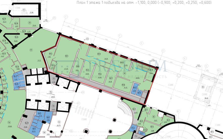
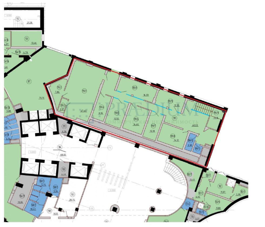
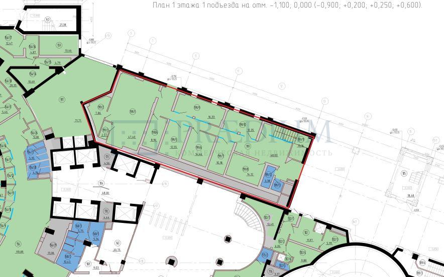
Аренда офисных помещений
Этаж
Метраж
Стоимостьв месяц
Цена зам2 в год
Назначение
Фотоблока
1
277.00
1 746 023 р.
75 640 р.
-
Характеристики
| Состояние | С отделкой |
| OPEX | Фиксированные |
| Коммунальные платежи | По факту |
1
1020.00
6 429 400 р.
75 640 р.
-
Характеристики
| Состояние | С отделкой |
| OPEX | Фиксированные |
| Коммунальные платежи | По факту |
2
2581.00
16 268 903 р.
75 640 р.
-
Характеристики
| Состояние | С отделкой |
| OPEX | Фиксированные |
| Коммунальные платежи | По факту |
| Смешанная планировка |
2
1838.00
11 585 527 р.
75 640 р.
-
Характеристики
| Состояние | С отделкой |
| OPEX | Фиксированные |
| Коммунальные платежи | По факту |
Описание
Описание: Бизнес-центр "Северная Башня" общей площадью 135 000 кв.м., состоит из 3 частей (подъездов):
- 1 - общей площадью 24 000 кв. м., 12 надземных этажей , площадь типового этажа - 1 700 кв.м.;
- 2 - общей площадью 36 000 кв. м., 14 надземных этажей, площадь типового этажа - 2 800 кв.м.;
- 3 - общей площадью 75 000 кв.м.: 26 - надземных этажей, площадь типового этажа - 1700 кв.м.
интересует помещение?
Заполните заявку или позвоните по телефону +7 (495) 777-15-15 и консультанты ответят на ваши вопросы и назначат просмотр
Согласен на обработку персональных данных
По дополнительным вопросам и организации просмотров, пожалуйста, обращайтесь к консультанту
по объекту: +7 (495) 777 15 15
Объекты рядом
Портфолио сделок
Аренда офиса 4589 кв.м.
- Клиент: Wildberries
- Слободской
- Площадь 12659.5 м2
Аренда офиса 872 кв.м.
- Клиент: Глосав
- Воробьёвский
- Площадь 16000 м2
Аренда офиса 1232,2 м2
- Клиент: АльфаЮми
- Басманная Стар. ул, д 18 стр 3, Москва
- Площадь 1602.1 м2










































