Басманная Новая ул, д 14 стр 4, Москва
Красные ворота (7 мин. пеш.)
Путь
- Общее
- Коммерческие условия
| Округ | Центральный |
| Класс | B |
| Тип здания | Офисная недвижимость |
| Общая площадь | 1534 м2 |
| Этажность | 3 |
| Кондиционирование | Центральное |
| Вентиляция | Приточно-вытяжная |
| Провайдер | коммерческий |
| Операционные платежи | операционные расходы включены в арендную ставку |
| Коммунальные платежи | включены в арендную ставку, электричество оплачивается дополнительно |
Продажа офисных помещений
Этаж
Метраж
Стоимостьв месяц
Цена за м2
Назначение
Фотоблока
1
1534.00
370 000 000 р.
241 199 р.
-
Характеристики
| Состояние | С отделкой |
| Электричество | 100 |
Описание
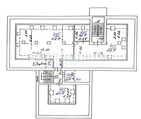
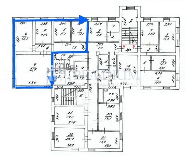
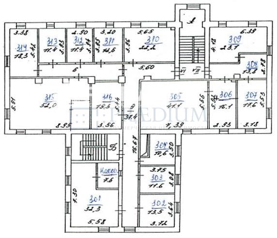
Описание: Трехэтажный особнк общей площадью 1 534 кв.м.
Огороженная территория.
интересует помещение?
Заполните заявку или позвоните по телефону +7 (495) 777-15-15 и консультанты ответят на ваши вопросы и назначат просмотр
Согласен на обработку персональных данных
По дополнительным вопросам и организации просмотров, пожалуйста, обращайтесь к консультанту
по объекту: +7 (495) 777 15 15
Объекты рядом
Портфолио сделок
Аренда офиса 980 кв.м.
- Клиент: МедиаМаркт
- Симонов Плаза
- Площадь 62500 м2
Аренда офиса 1574 кв.м
- Клиент: Магнит
- РТС Варшавский
- Площадь 18840 м2
Аренда офиса 1282 кв.м.
- Клиент: БОВА Евразия
- Очаковская Б. ул, д 35А, Москва
- Площадь 1450.8 м2






